Visez aux images ci-dessous
Visez aux images ci-dessous
salon avec terrasse
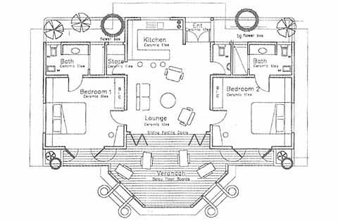
plan des villas
salon avec terrasse
chambre avec grand lit double
cuisine